2-к, Октябрьский проспект, 62 Показать на карте
Зашекснинский
Череповец
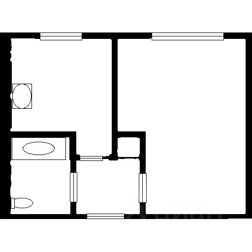
Продаётся просторная двухкомнатная квартира в Череповце! Адрес: г. Череповец, Зашекснинский микрорайон, Октябрьский проспект, д. 62 Этаж: 10 (последний) Жилая площадь: 69.4 м² Кухня: 21.8 м² Общая площадь с лоджиями: 82.55 м² Описание квартиры:Эта квартира предлагает продуманную планировку и комфортное пространство для жизни. Просторная кухня идеально подойдёт для семейных ужинов и встреч с друзьями. Две лоджии (по 6 м²) с панорамными окнами в пол подарят вам возможность наслаждаться утренним кофе с видом на лесной парк.Инфраструктура:• Во дворе расположена детская площадка, что особенно важно для молодых семей.• В шаговой доступности находится детский сад ''Звездочка'' и школы, что значительно экономит время на дорогу.• Рядом — городская поликлиника 7 для вашего удобства.Безопасность и комфорт:Территория двора оборудована парковочными местами со шлагбаумом, что обеспечивает безопасность вашего автомобиля. Закрытая территория дома гарантирует спокойствие и комфорт для жителей.Ремонт и планировка:Хотя в квартире ещё не проводился ремонт, это даёт вам возможность создать идеальное пространство по своему вкусу. Раздельный санузел добавляет удобства в повседневной жизни. Возможен торг!Не упустите шанс стать владельцем современного жилья с отличной инфраструктурой! Звоните и записывайтесь на просмотр!18:46 Код пользователя: 175757Номер в базе: 9593477
69 м2
10 / 10 этаж
Кирпич
- Показать контакты
- Добавить в избранное
69 м2
10 / 10 этаж
Кирпич
8 920 000
128 530 /м2
Новостройка,
дом сдан
дом сдан
