2-к, Ленина, 118 Показать на карте
Индустриальный
Череповец
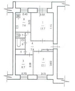
Двухкомнатная квартира в развитом районе города предлагает выгодное сочетание цены, комфорта и транспортной доступности. Объект расположен на третьем этаже пятиэтажного дома, в чистом и ухоженном подъезде. Ключевым преимуществом является грамотная и полностью узаконенная перепланировка, которая позволила создать практичное и современное жилое пространство. Изолированные комнаты, расположенные по разные стороны, обеспечивают максимальное уединение и тишину, что идеально подходит для семьи с детьми или двух человек. В квартире частично выполнен ремонт, заменены окна. Район отличается развитой социальной и коммерческой инфраструктурой: в шаговой доступности находятся детские сады, школы, поликлиника, супермаркеты, банки и множество других необходимых объектов. Остановка общественного транспорта расположена в двух минутах ходьбы, откуда можно быстро добраться до центра города и основных магистралей. Квартира продается от взрослых собственников и готова к заключению сделки с любой удобной для покупателя формой расчета. Это надежный и перспективный вариант для собственного проживания или долгосрочных инвестиций. Код пользователя: 250081Номер в базе: 9725723
42 м2
3 / 5 этаж
Кирпич
- Показать контакты
- Добавить в избранное
42 м2
3 / 5 этаж
Кирпич
3 750 000
89 286 /м2
