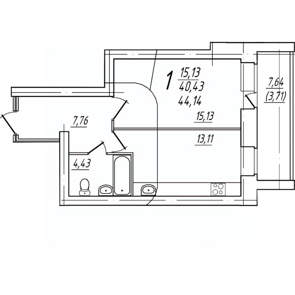
Жилой комплекс ''Наш дом на Советском'' — одноподъездное кирпичное здание высотой девять этажей. Здание выполнено из керамического кирпича и расположено в центральной части города. В доме представлены квартиры общей площадью от 38 квадратных метров с различными планировками. Все объекты поставлены с предчистовой отделкой, что позволяет самостоятельно выбрать стиль внутренней планировки. Также на территории установлено оборудование автономной газовой котельной для обеспечения системы отопления здания.