Если цена в объявлении изменится, мы сразу сообщим вам об этом на электронную почту.
Нажимая «Подписаться», вы соглашаетесь с правилами.
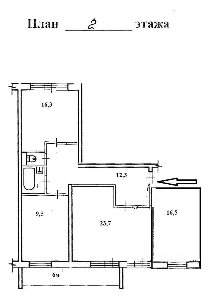
продам 3-к, Сталеваров, 30а6 500 000 ₽
25 дек
Дата публикации объявления
Обн. 2 апр
Дата обновления объявления
77 289 ₽/м²
Чистая продажа
Термин "Чистая продажа" означает, что в квартире никто не прописан или
есть куда выписаться и вывезти вещи. Это лучший вариант для покупателя.
Вероятность срыва сделки минимальна.
Арт. 128053285 Уже внесён аванс. В продаже 3к. кв. в Индустриальном районе. Просторная квартира , с отличной планировкой. Все комнаты раздельные , зал- гостиная 23,8 м2. Кухня квадратной формы 9,5 м2, с выходом на лоджию. Косметический ремонт частично , заменены межкомнатные двери, ламинат, натяжные потолки с точечным освещением ( в зале и детской комнате), в детской установлен стеклопакет. Окна квартиры выходят на разные стороны. Дом расположен удачно, вдали от проезжей части, но вся инфраструктура в пешей доступности : остановки автобусов, магазины, Т.Ц. Интерсити, Дворец пионеров, ДКМ, площадь Молодежи, училище искусств им. Верещагина, детские сады и школы. Неоспоримые преимущества : кирпичный дом, второй этаж, планировка, метраж - 84 м2.
Арт. 128053285 Уже внесён аванс. В продаже 3к. кв. в Индустриальном районе. Просторная квартира , с отличной планировкой. Все комнаты раздельные , зал- гостиная 23,8 м2. Кухня квадратной формы 9,5 м2, с выходом на лоджию. Косметический ремонт частично , заменены межкомнатные двери, ламинат, натяжные потолки с точечным освещением ( в зале и детской комнате), в детской установлен стеклопакет. Окна квартиры выходят на разные стороны. Дом расположен удачно, вдали от проезжей части, но вся инфраструктура в пешей доступности : остановки автобусов, магазины, Т.Ц. Интерсити, Дворец пионеров, ДКМ, площадь Молодежи, училище искусств им. Верещагина, детские сады и школы. Неоспоримые преимущества : кирпичный дом, второй этаж, планировка, метраж - 84 м2. Просмотр по договоренности.