2-к, Ленинградская, 38 Показать на карте
Зашекснинский
Череповец
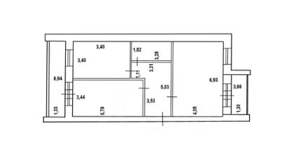
Отличный вариант для дружной семьи в самом востребованном, перспективном и быстроразвивающемся районе города! Теплый, добротный, надежный и эстетичный дом, который будет служить многие годы! Очень уютная и светлая квартира с идеальными характеристиками: общая площадь - 70,4 кв.м, 2 комнаты квадратной формы (15 и 23,25 кв.м), большой коридор и просторная кухня (12.7 кв.м) - мечта любой хозяйки. Вам обязательно понравится продуманная и удобная планировка квартиры. Также есть отдельная гардеробная, которая сэкономит пространство в квартире и позволит удобно разместить вещи. Санузел раздельный. Еще один плюс в том, что есть большая застекленная лоджия, которая сможет стать отличным местом для релакса после тяжелого трудового дня.Расположенная на первом этаже, она дает немало преимуществ для ее владельцев: можно быстро и легко подняться, из окна можно наблюдать за детьми, идущими в школу, а также присматривать за автомобилем. Окна и лоджия выходят на противоположную от входа в подъезд сторону, поэтому и звуков домофона, и разговоров соседей не слышно! В квартире сделан косметический ремонт, сюда можно сразу заехать и жить, не тратя дополнительные средства и время, а можно сделать ремонт на свой вкус, воплотив в жизнь все свои дизайнерские идеи.Эта квартира может стать и супер-вариантом для молодой современной семьи, и отличным вариантом для сдачи в аренду. Ухоженный двор, а также чистый подъезд будет радовать не только Вас, но и Ваших гостей.Здесь оборудована большая современная детская площадка, поэтому Ваш ребенок всегда найдет себе развлечение. Соседи спокойные и дружные. Еще один неоспоримый плюс - это наличие рядом большой парковки, поэтому Вам не придется долго искать место для своего автомобиля после напряженного рабочего дня. Ну и конечно, отличная локация - рядом все инфраструктурные объекты, в шаговой доступности очень много магазинов, кафе и ресторанов, автобусные остановки, ТЦ ''Июнь'' и ''Лента'', аквапарк ''Радужный'', Ледовый дворец, Храм Сергия Радонежского, детские сады 39 и 15, школы 23 и 41 - самые крупные и современные школы региона, оснащённые инновационным оборудованием. Поблизости идет строительство поликлиники 7. Очень много мест для прогулок с детьми. Хорошая транспортная доступность во всех направлениях позволит не тратить массу времени на поездку даже в часы-пик. Однажды привыкнув к этому, Вы уже не захотите менять своих привычек. А это значит, что у Вас просто не возникнет сомнений: это лучшее место во всем Зашекснинском районе! В общем, здесь есть абсолютно все для комфортной и счастливой жизни!Оказавшись здесь, Вы, несомненно, отметите приятную атмосферу! Записывайтесь на просмотр и убедитесь в этом сами! Звоните с 9.00 до 22.00, покажем в удобное время!Быстрый выход на сделку: один взрослый собственник, документы готовы к продаже. Возможен разумный торг! Специально для клиентов компании ''Этажи'' - полное юридическое сопровождение, безопасные расчёты, гарантия чистоты сделки (вручается гар
70 м2
1 / 4 этаж
Кирпич
- Показать контакты
- Добавить в избранное
70 м2
1 / 4 этаж
Кирпич
8 500 000
120 739 /м2
